Wagenaarstraat

Prijs : € 778

Amsterdam

appartement


Wagenaarstraat Ga naar Huurwoningen-nl

voor € 778

Bekijk alle informatie en beschikbaarheid bij Huurwoningen-nl.

Belangrijk! Dit geldt uitsluitend voor een woningruil; je moet een huurwoning hebben om met deze huurwoning te kunnen ruilen.

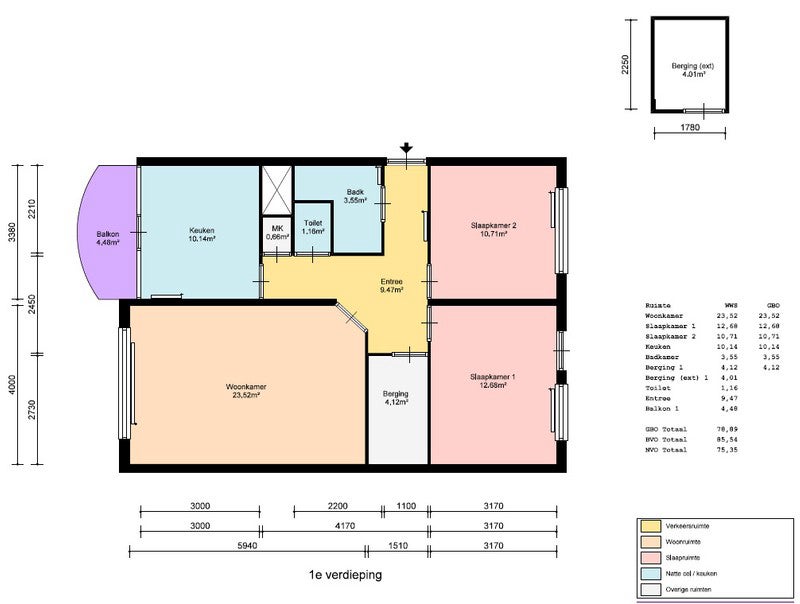
Appartement in Amsterdam Oost De oppervlakte van het huis is ongeveer 80 vierkante meter + berging, eerste verdieping. Een gebouw bewoond door vriendelijke buren en een rustige buurt, omringd door alle diensten, faciliteiten en markten.

De plaats heeft geen uitleg nod....



Eigenschappen
Naam Wagenaarstraat
Amsterdam
Type Appartement
Aanbieder Huurwoningen-Nl
Provincie Noord-Holland
Oppervlakte 80
Aantal kamers 3
Postcode 1093CL