Hoogte Kadijk

Prijs : € 950

Amsterdam

appartement


Hoogte Kadijk Ga naar Huurwoningen-nl

voor € 950

Bekijk alle informatie en beschikbaarheid bij Huurwoningen-nl.

Belangrijk! Dit geldt uitsluitend voor een woningruil; je moet een huurwoning hebben om met deze huurwoning te kunnen ruilen.

vrije sector woningenWelkom op de Hoogte Kadijk: Wonen in het hart van Amsterdam! Bent u op zoek naar een unieke plek waar de charme van oud Amsterdam samenkomt met de dynamiek van de stad? Dan is onze woning op de kindvriendelijke en prachtige Hoogte Kadijk de perfecte....



Eigenschappen
Naam Hoogte Kadijk
Amsterdam
Type Appartement
Aanbieder Huurwoningen-Nl
Provincie Noord-Holland
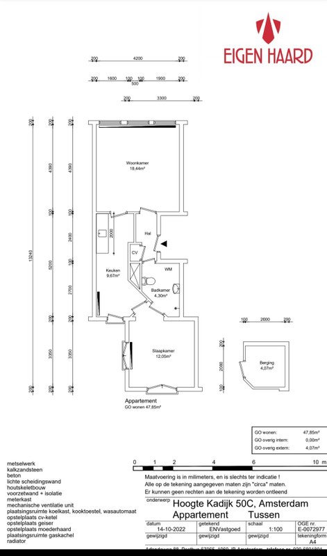
Oppervlakte 47
Aantal kamers 2
Postcode 1018BN