Brigantijn

Prijs : € 800

Brielle

huis


Brigantijn Ga naar Huurwoningen-nl

voor € 800

Bekijk alle informatie en beschikbaarheid bij Huurwoningen-nl.

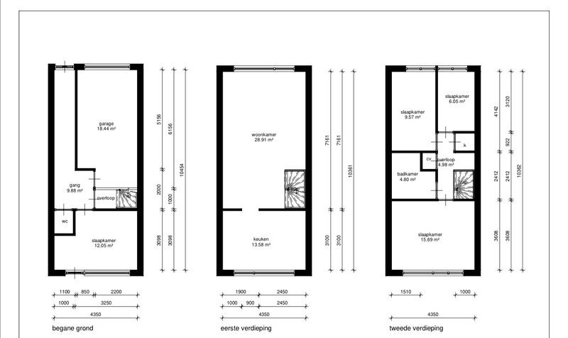
Deze ruime woning in het gezellige Brielle is perfect voor een woningruil.

Het ligt in een rustige buurt, met scholen en een supermarkt op loopafstand. De woning heeft een garage, wat extra gemak biedt.

Een ideale plek voor diegene die vanuit een huurwoning wil ruilen..



Eigenschappen
Naam Brigantijn
Brielle
Type Huis
Aanbieder Huurwoningen-Nl
Provincie Zuid-Holland
Oppervlakte 300
Aantal kamers 5
Postcode 3232CB