Studio Te Huur In Het Centrum Van Doorn

Prijs : € 995

Doorn

Onbekend


Studio Te Huur In Het Centrum Van Doorn Ga naar Huurportaal-nl

voor € 995

Bekijk alle informatie en beschikbaarheid bij Huurportaal-nl.

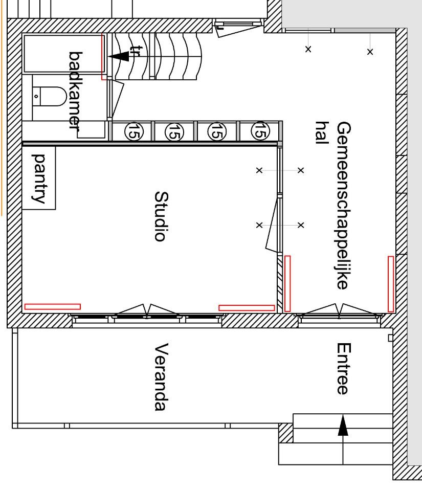
In het centrum van Doorn komt met ingang van 1 mei 2026 vrij een gestoffeerde studio voor de verhuur.

De studio is gelegen in het centrum van Doorn, op loopafstand van winkels en openbaar vervoer. De studio is geschikt voor 1 persoon en wordt niet aan meerdere personen verhuurd. De studio is gelegen op de begane grond met een groot ruim overdekte buitenruimte op de zon.
Naast de woonslaapkamer is de privé badkamer gelegen met een bad, toilet en wastafel. Er is een gemeenschappelijke fietsenberging aanwezig.


De ideale huurder is een jonge werkende. Inkomen minimaal 3x de huur. Er worden 2 maanden borg gevraagd. Bij de woning kan een parkeerplaats per maand gehuurd worden.

Kosten hiervoor zijn € 50,= per maand..



Kaart

Eigenschappen
Naam Studio Te Huur In Het Centrum Van Doorn
Doorn
Type Onbekend
Aanbieder Huurportaal-Nl
Oppervlakte 22
Aantal kamers 1
Postcode 3941 HN